El caso de la empresa Servicios Portuarios en Puerto Norte, Rosario
Natalia Feld[1]
El puerto norte de Rosario fue, desde mediados del siglo XVIII, el “Puerto de la Confederación Argentina” y, a partir de allí, comenzaría a consolidarse como uno de los principales enclaves de la exportación de granos del país. No obstante, ese territorio costero, estructurado por un complejo sistema de infraestructura portuaria y ferroviaria, intentaba ser recuperado como frente paisajístico de la ciudad. A partir del regreso de la democracia en 1983, las alternativas de reconversión hallaron nuevas posibilidades de materialización. Sin embargo, recién en el año 2005, la restructuración de Puerto Norte encontró las condiciones de posibilidad para ponerse en marcha. En la actualidad, casi 20 años después, la transformación del territorio en Puerto Norte se convirtió en la nueva postal de Rosario. Por su escala y por sus características, la intervención puede inscribirse en el marco de lo que la bibliografía caracterizó como grandes proyectos urbanos (GPU) y, dentro de estos, los denominados water front.
El proceso de transformación de la costa, que requería la desafectación y desplazamiento de la infraestructura y de los servicios del puerto, entraba en colisión con la privatización de unidades portuarias que, impulsadas por el Estado nacional, reforzaban las actividades de almacenaje y exportación de granos en ese sector. Un ejemplo paradigmático de esta tensión fue la privatización en el año 1993 de la Unidad Portuaria III, en un sector que había sido designado como “costa de reconversión portuaria”. La empresa adjudicataria fue Servicios Portuarios S.A., perteneciente al abogado Juan Manuel Ondarcuhu. Se trata de una empresa creada a principios de la década del 80 dedicada, desde sus inicios, a servicios para el almacenamiento y embarque de granos y oleaginosas[2]. Actualmente, por su escala y por su alcance geográfico[3] es considerada como una de las empresas de mayor influencia en la región del Paraná medio (Valenti Randi, 2021).
El análisis de Servicios Portuarios en Puerto Norte resulta de particular interés porque comenzó siendo una empresa exportadora y, en el marco del proceso de transformación costera, se convirtió en desarrolladora inmobiliaria. En efecto, en el contexto de esta política de reconversión, la empresa desplegó múltiples estrategias, modos de negociación y “presión” que le permitieron, mientras se consolidaba como holding en sus actividades de origen, diversificarse y posicionarse como la desarrolladora inmobiliaria[4] de mayor relevancia en Puerto Norte. Desde esa perspectiva es posible iluminar los recursos que los actores empresariales ponen en juego y que, a su vez, no solo están definidos por las condiciones locales históricas, políticas y territoriales, sino que, además, se modifican en función de la temporalidad del proyecto.
Las relaciones entre las empresas y el desarrollo urbano fueron largamente estudiadas por la bibliografía, que mostró, en los ciclos de metropolización y desde distintas perspectivas, su rol en la producción del espacio. En fecha reciente estos temas volvieron a adquirir relevancia en el marco del estudio de los GPU, pues el rol de las empresas se modificó en torno a los mecanismos de articulación público-privada que supone la gestión de estas intervenciones. Desde esta preocupación, los primeros estudios en América Latina identificaron los intereses de las empresas en función de las lógicas de producción, circulación y apropiación del capital en la reconstrucción de la ciudad (Lungo, 2005; Smolka & Lungo, 2005; Carmona, 2005; Rodríguez & Abramo, 2005; Vainer, 2012; Morales-Schechinger, 2005).
Esta perspectiva de análisis fue retomada por los trabajos en Argentina que, a su vez, pusieron el foco en los instrumentos de gestión desde sus capacidades para contrarrestar los procesos regresivos producto de su implementación (Cuenya et al., 2004; Corral, 2009; Cuenya & Pupareli, 2006; Cuenya & Corral, 2011; Cuenya, 2012; Etulain, 2008; Etulain, 2009; Mosto, 2013). Este abordaje desde la “escala macro” resultó central para comprender el rol de las empresas en la articulación con las lógicas de circulación del capital y en relación con otros actores sociales. Sin embargo, fue dejando en las sombras la escala intermedia, desde donde es posible iluminar las acciones concretas que las empresas llevan adelante en función de estos intereses (Dossi & Lissin, 2011)
En esta orientación, la bibliografía reciente sobre lo público y lo privado incorporó tanto la dimensión política como las especificidades locales que intervienen en los procesos urbanos (Arqueros Mejica, 2020; Capdevielle, 2016; Gonzalez-Redondo, 2022; Magallanes, 2023; Menazzi, 2015; Raspall, 2014; Socoloff, 2013; Socoloff, 2018). En ese marco, se desarrollaron investigaciones que pusieron el foco en analizar las trayectorias y estrategias empresariales (Cisterna & Capdevielle, 2015; Cisterna, 2023; Pegoraro, 2020; Quiroga Ríos, 2022; Socoloff, 2015) analizando de qué manera estas intervienen en la redefinición de los marcos institucionales y normativos (Peresini, 2020; Vértiz & Del Río, 2020).
Estos abordajes abren la posibilidad de revisitar los GPU, considerando las modalidades según las cuales los actores empresariales “diseñan sus acciones” (y las “rediseñan”) en interacción con otros actores y lo que está en juego en cada escenario. Para ello, la noción de acción empresarial, tributaria de la nueva sociología económica (Granovetter, 1985), permite, sin dejar de considerar los procesos macro, analizar cómo los actores empresariales construyen y definen sus acciones en función de los sistemas relacionales de poder en los que participan (Beltrán, 2012; Dossi & Lissin, 2011; Dossi, 2012). Desde esta perspectiva, y sobre la base de trabajos anteriores donde ‒a partir de una aproximación multiescalar‒ dimos cuenta de los alcances del entramado de actores público-privados que intervienen en el proceso de formulación e implementación de los GPU (Feld, 2021; Novick & Feld, 2021), este capítulo se propone analizar la acción empresarial de Servicios Portuarios en relación con el devenir del GPU y lo que está en juego en cada momento del proceso. Se trata de indagar sobre las modalidades según las cuales la empresa, en relación con otros actores, fue modificando sus estrategias en la larga duración del proyecto.
Metodológicamente, se trata de una escala intermedia, entre las visiones más macro de las estructuras económicas y las “micro” propias del estudio de las organizaciones. Desde esta perspectiva, es posible mostrar, en primer lugar, que los actores empresariales se construyen al calor de la temporalidad del proyecto, los escenarios políticos y las condiciones macroeconómicas. En segundo lugar, que las acciones se orientan a adquirir capacidades de intervención en los ámbitos de negociación, con el fin de obtener respuestas institucionales a sus intereses. En tercer lugar, que el sistema relacional de poder de los actores que intervienen en esos ámbitos incide en la configuración espacial del GPU.
Este texto se organiza en tres apartados según una periodización cronológico-problemática, en función de las estrategias desplegadas por Servicios Portuarios en el proceso de reconversión por el que atravesó Puerto Norte[5].
El primer apartado, que corresponde al período 1993-2007, presenta la construcción de Servicios Portuarios como empresa agroexportadora de gran escala y la organización de sus estrategias frente a la puesta en marcha del GPU. El segundo, que abarca el período 2007-2013, muestra el punto de inflexión en la trayectoria de la empresa ante la finalización de la instancia judicial y el avance en la consolidación del proyecto. El tercer apartado, que analiza el periodo 2013-2022, muestra la reconfiguración de tales estrategias ante la posibilidad de obtener mayores indicadores urbanísticos e iniciar un nuevo proceso de valorización. En este punto, resulta ilustrativo dar cuenta del modo en que estas estrategias fueron replicadas por otras empresas, que posteriormente comenzaron a operar en sus terrenos.
Resistencia y judicialización. 1993-2007
Las estrategias de Servicios Portuarios desplegadas entre los años 1993 y 2007 se encontraron atravesadas por dos momentos del proceso de reconversión en Puerto Norte. En el momento inicial de gestación del Proyecto, y sobre la base de su trayectoria previa, la empresa utilizó la judicialización como estrategia de resistencia para garantizar la continuidad de sus actividades portuarias. En un segundo momento de puesta en marcha, además, operó a partir de la adquisición de nuevas tierras como estrategia de especulación sobre la rentabilidad inmobiliaria que el proyecto impulsaba.
Estas estrategias se definieron en función de la tensión histórica entre la política de privatización portuaria llevada adelante por el Estado nacional y la política de reconversión costera promovida por el Estado local. Esta tensión, que había iniciado a finales de la década del 70, se profundizaba a principios de la década del 90, frente al nuevo ciclo de reforma neoliberal del Estado (Duarte, 2002). En este contexto, Domingo Cavallo, a través del entonces Ministerio de Economía, Obras y Servicios Públicos, declaraba en el año 1991 la liquidación de la Junta Nacional de Granos[6] y la consecuente privatización (por venta o locación) de los elevadores terminales en todo el país[7]. En el caso de Rosario, esta política implicó la adjudicación de la Unidad Portuaria III[8] a la empresa Servicios Portuarios.
Efectivamente, este proceso, que indirectamente incentivaba la actividad portuaria en la costa norte, obstaculizaba la política histórica de desafectación del puerto y su traslado al sur de la ciudad. Las ideas de reconversión, que habían comenzado a incorporarse ya desde el Plan Director de 1935 y el Plan Regulador de 1968, encontraron en el ideario de la planificación estratégica de la década del 90 nuevas posibilidades de realización. Estas, a su vez, se encontraron acompañadas no solo por el vencimiento de los permisos de explotación portuaria que el municipio había fijado para el año 1996[9], sino también por el ciclo de reactivación del mercado inmobiliario iniciado en los primeros años de la década del 90[10].
En este contexto, la Secretaría de Planeamiento asumió la desafectación total de las actividades portuarias y el inicio de la reconversión en Puerto Norte como políticas de gobierno (Palumbo, comunicación personal 24-04-20). Para ello, por un lado, aprobó en el año 1996 la “Primera Fase del Centro de Renovación Urbana Scalabrini Ortiz”[11], que prontamente sería adjudicada a la empresa IRSA para la realización de un shopping. Se trataba de un sector lindero a Puerto Norte que había pertenecido a Ferrocarriles Argentinos, y cuyas posibilidades de reconversión permitían promover el proceso sobre la costa. Por otro lado, luego de haber obtenido una sentencia favorable en el litigio judicial que cuestionaba su potestad regulatoria sobre los terrenos costeros[12], puso en marcha un plan sistemático de desmantelamiento de la actividad portuaria. A partir de aquí, estableció los plazos máximos de operación de cada unidad, la última de las cuales era la de Servicios Portuarios, que debía dejar de funcionar en el año 2003 (Palumbo, comunicación personal 24-04-20). Ante esta decisión, la empresa desplegó múltiples estrategias de resistencia y, luego de un complejo proceso de negociaciones, inició una demanda judicial contra la Municipalidad de Rosario[13]. Esta estrategia le permitió garantizar su continuidad como empresa de almacenamiento y embarque en Puerto Norte y, de manera simultánea, posicionarse como un actor central en el proceso.
El segundo momento de la política de reconversión en Puerto Norte inició en el año 2005, a partir de la aprobación del “Plan Especial 2.a Fase del Centro de Renovación Urbana Raúl Scalabrini Ortiz. Puerto Norte” [14]. La puesta en marcha de esta política había encontrado las condiciones de posibilidad, no solo en un nuevo ciclo de valorización del mercado inmobiliario, sino también en una renovada política local que asumió la reconversión costera como estrategia para el desarrollo de la ciudad.
Efectivamente, entre los años 2003 y 2013, la Argentina atravesó por un fuerte proceso de reactivación del mercado inmobiliario. El origen de este ciclo fue atribuido, en primer lugar, al excedente de producción que comenzó a generar el sector agroexportador. En segundo lugar, a la caída de los precios del suelo y de los costos de construcción, producidos como consecuencia de la crisis que había atravesado el país en el año 2001 (Raspall, 2018; Socoloff, 2019). En tercer lugar, al redireccionamiento de las inversiones de la clase de mayor poder adquisitivo hacia el sector inmobiliario, producto de la desconfianza en el sistema bancario que había provocado dicha crisis (Baer, 2008; del Río et al., 2014).
Efectivamente, este ciclo de reactivación del mercado inmobiliario coincidió en Rosario con un momento de cambio en la matriz ideológica de los gobiernos socialistas, que le imprimió a la Secretaría de Planeamiento un nuevo perfil “empresarialista” (Barenboim & Tomino, 2016; Brizuela, 2022; Scarpacci, 2014). Con esta orientación, y ante la multiplicidad de intereses privados en juego, la Secretaría de Planeamiento sectorizó Puerto Norte en unidades de gestión[15] y utilizó el Convenio Urbanístico como estrategia para llevar adelante el proceso. Este instrumento de gestión había sido incorporado en Rosario a través de la Ordenanza de Urbanización del año 1997[16]. Su utilización permite definir un ámbito de concertación entre los intereses públicos y privados para acordar las condiciones normativas de un determinado desarrollo, estableciendo las obligaciones y compensaciones de ambas partes (Peresini, 2019). De esta manera, la Secretaría de Planeamiento incorporaba la posibilidad de negociar las condiciones de realización de los desarrollos inmobiliarios con cada propietario de manera independiente.
El objetivo que se encontraba por detrás de su instrumentación era el de garantizar las condiciones proyectuales que históricamente habían formado parte de los debates sobre la costa y, de manera simultánea, las condiciones de rentabilidad para que “las cosas sucedan”. En otras palabras, se trataba de impulsar los desarrollos inmobiliarios respetando la preservación de silos considerados de valor patrimonial, la continuidad peatonal del paseo costero, la consolidación de nuevos espacios públicos y la determinación de alturas máximas, entre otros[17].
En este segundo momento del proceso de Puerto Norte, Servicios Portuarios desplegó una nueva estrategia de negocios orientada por la especulación sobre la renta inmobiliaria. Para ello utilizó el remate judicial por quiebra de la Federación Argentina de Cooperativas Agrarias (FACA), con el fin de obtener el dominio sobre la Unidad Portuaria I (Cuenya, 2012). De esta manera, ya siendo propietaria de la Unidad de Gestión N.° 6, (ex Unidad Portuaria III) ahora adquiría la Unidad de Gestión N.° 1. A través de esta estrategia, se posicionaba como la empresa propietaria de mayor relevancia en Puerto Norte y, por lo tanto, adquiría nuevas capacidades diferenciales de negociación en el entramado de poder en el que operaba. En la figura 1 es posible identificar las dos unidades de gestión que quedaron bajo el dominio de Servicios Portuarios.
Figura 1. Unidades de gestión N.º 1 y N.º 6
pertenecientes a Servicios Portuarios

Fuente: elaboración propia con base en Ordenanza Básica N.° 7892/05.
En síntesis, en este momento inicial las estrategias desplegadas por Servicios Portuarios le permitieron obstaculizar el proceso de reconversión y, al mismo tiempo, legitimarse como un actor central con quien el municipio debía negociar. A su vez, para la Secretaría de Planeamiento esta posibilidad de negociación, habilitada por la instrumentación del Convenio Urbanístico, constituía una oportunidad para iniciar el proceso de reconversión, a partir de las premisas proyectuales definidas para ese sector de la ciudad.
Proyecto y diversificación. 2007-2013
Las estrategias de Servicios Portuarios cambiaron de rumbo frente a la finalización de la instancia judicial, que falló a favor del municipio y al alto grado de avance en la consolidación del proyecto urbano. En este contexto, la empresa utilizó la propiedad sobre la tierra para diversificar sus actividades de negocios e incorporarse en el tablero de la competencia inmobiliaria. La primera estrategia fue la negociación del Convenio Urbanístico, con el fin de obtener las condiciones normativas de ambas unidades de gestión de manera conjunta. La segunda, asociarse con empresas de amplia trayectoria en desarrollos inmobiliarios para incorporar capacidades de operación en el nuevo mercado del que comenzaba a formar parte.
Efectivamente, el litigio judicial que había iniciado Servicios Portuarios finalizó en el año 2007 cuando la Corte Suprema de la Nación le otorgó al municipio la potestad para desafectar las actividades portuarias en la ahora denominada Unidad de Gestión N.° 6 (ex Unidad Portuaria III)[18]. A partir de aquí Servicios Portuarios iniciaría las negociaciones para suscribir el Convenio Urbanístico que su nueva estrategia de negocios requería. Este proceso finalizó en el año 2008 junto con la suscripción de dos Actas Acuerdo simultáneas. La primera, referida a la finalización de los litigios judiciales y la aceptación de las condiciones de clausura de la Unidad Portuaria III (Acta Acuerdo, 14 de mayo de 2008)[19]. La segunda, correspondiente a la adhesión y aceptación de los Planes de Detalle de la Unidad de Gestión N.° 1 y la Unidad de Gestión N.° 6 (Acta Acuerdo, 14 de mayo de 2008). Finalmente, sobre la base de estos acuerdos, el Concejo Deliberante aprobó la Ordenanza Complementaria[20] que establecía los indicadores y las condiciones de urbanización de los terrenos pertenecientes a Servicios Portuarios.
Esta negociación fue compleja porque se trataba de dos unidades de gestión que se consideraban de manera conjunta y porque, además, el proceso había estado atravesado por los reclamos judiciales previos (Mirta Levin, comunicación personal, 7-11-2019). A pesar de estas dificultades, la Secretaría de Planeamiento logró incorporar las condiciones de proyecto sobre las cuales se habían sentado las bases del proceso de reconversión en Puerto Norte (Kozak & Feld, 2017). Se trataba, tal como se mencionó en el apartado anterior, de la preservación de silos, la continuidad peatonal del paseo costero, la consolidación de nuevos espacios públicos y la determinación de alturas máximas.
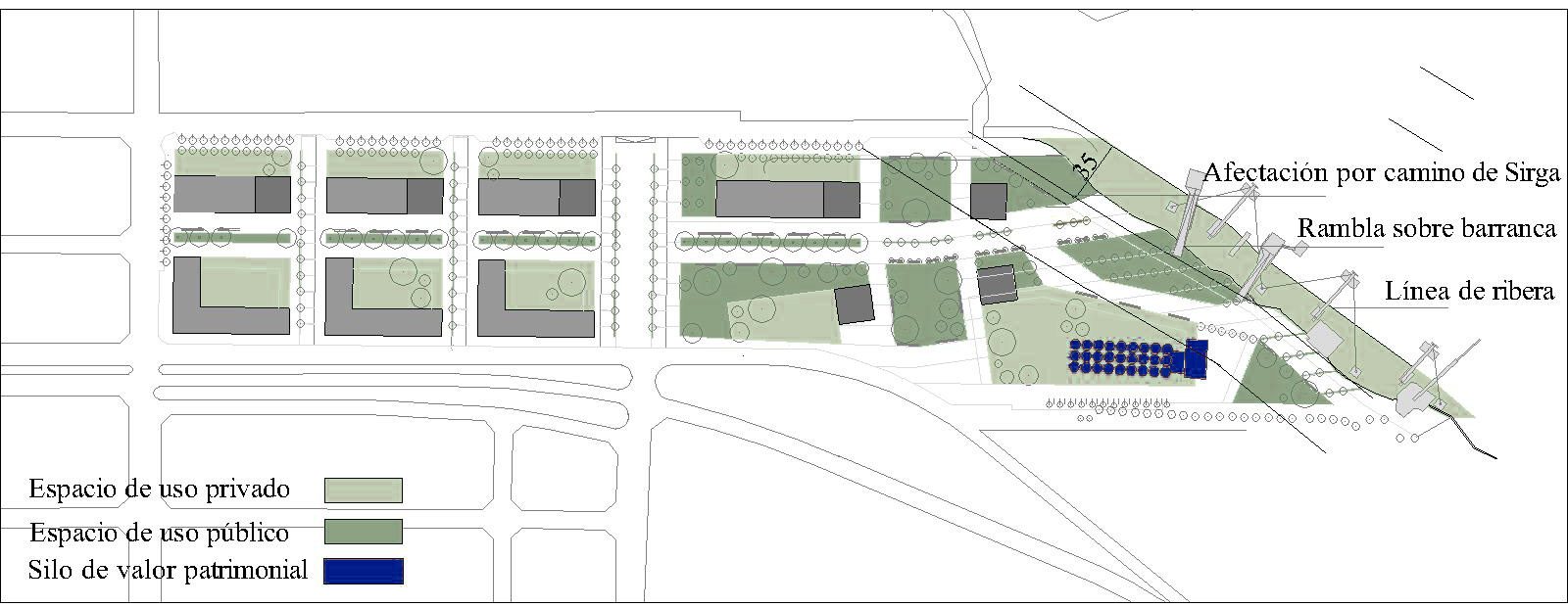
En el caso de la Unidad de Gestión N.° 1[21], a través de la figura de “servidumbre administrativa de uso público”[22] fue posible incorporar una serie de paseos públicos peatonales que el urbanizador debía realizar. Tal como se puede ver en la figura 2, estos paseos quedaron organizados en función de un recorrido central y otro sobre la costa. Por otro lado, se estableció una altura máxima de 66 m definida con el objetivo de respetar la escala espacial generada por los silos preexistentes.
Figura 2. Proyecto aprobado Unidad de Gestión N.° 1

Fuente: Plan Urbano Rosario 2007-2017.
Asimismo, la ocupación de la zona costera se encontró definida por dos restricciones. Por un lado, la franja de 35 metros correspondiente al Camino de Sirga. Esta es una condición que se encuentra definida en el Código Civil de la República Argentina y establece que “[l]os propietarios limítrofes con los ríos o con canales que sirven a la comunicación por agua, están obligados a dejar una calle o camino público de 35 metros hasta la orilla del río, o del canal, sin ninguna indemnización”. Por otro lado, además, se agregaba como condición complementaria una franja de 34 metros medidos desde la línea de borde superior de la barranca (figura 3). Esta última restricción garantizaba mayor superficie de libre circulación sobre la costa. Así, el texto de la propia ordenanza establecía:
Se deberá respetar en toda la extensión los 35 metros correspondientes al camino de sirga establecido en el Art. 2340, inciso 4 y 2639 del Código Civil, y garantizar además, como mínimo, la libre circulación pública en toda la zona comprendida desde la línea del borde superior de la barranca actual hasta los 34 metros medidos perpendicularmente a esta, y hacia el oeste, con excepción de la superficie afectada a las construcciones autorizadas por la presente Ordenanza (Municipalidad de Rosario. Ordenanza N.° 8320/08. Plan de Detalle ug 1 y 6. Artículo 7: Indicadores Urbanísticos y Usos del Suelo).
Figura 3. Esquema plan de detalle Unidad de Gestión N.º 1. Señalización de franja de libre circulación y de Silo Unidad 1 de valor patrimonial

Fuente: elaboración propia con base en Ordenanza complementaria N.° 8320-08 y Plan Urbano Rosario 2007-2017.
Tal como se puede ver en la figura 3, las construcciones autorizadas hacen referencia a un edificio que ocupa una superficie de 20 por 20 metros y al silo considerado de valor patrimonial denominado Silo Unidad 1. En este último caso, la ordenanza estableció las condiciones de preservación y determinó como usos admitidos los de esparcimiento, actividades culturales, recreativas y gastronómicas (Ordenanza Complementaria N.° 8320/08).
En el caso de la Unidad de Gestión N.° 6, la preocupación por la conservación del valor patrimonial se verificó en la sectorización de los silos a preservar y la designación como de “protección total” para aquellos nomenclados como C1, C2 y C3 (figura 4). Esto implicaba que “no se los podrá demoler ni reemplazar por nuevas construcciones, permitiéndose reestructuraciones del interior, respetando la volumetría, materialidad y los procedimientos constructivos originales” (Ordenanza Complementaria N.° 8320-08). En cuanto a la incorporación de espacios públicos, el Convenio Urbanístico estableció, además de la superficie afectada como “servidumbre administrativa de uso público”, la obligación de ejecutar obras en el Parque de la Arenera según el anteproyecto propuesto por la Secretaría de Planeamiento.
Figura 4. Esquema plan de detalle Unidad de Gestión N.º 6.
Centro de Renovación Urbana Scalabrini Ortiz. Puerto Norte.
Señalización de los silos de protección total

Fuente: elaboración propia con base en Ordenanza Complementaria N.° 8320-08 y Plan Urbano Rosario 2007-2017.
Una vez suscripto el Convenio Urbanístico, Servicios Portuarios recurrió a la asociación con empresas de amplia trayectoria en el desarrollo de grandes proyectos inmobiliarios, como estrategia para adquirir capacidad de operación en el nuevo mercado al cual se incorporaba.
La primera, Fernández Prieto & Asoc., una de las empresas más importantes en Puerto Madero, desarrolladora, entre otros, de Zen City, BA Houses, Torres del Yacht, Terrazas del Yacht, Terrazas del Puerto[23]. En asociación con esta empresa, Servicios Portuarios desarrolló el proyecto denominado Maui en la Unidad de Gestión N.° 6: dos torres de 44 pisos con departamentos orientados a la demanda de “productos premium”.
La segunda, TGLT (hoy GCDI), una de las empresas desarrolladoras más grandes del país que, además, ya tenía experiencia en Puerto Norte con la realización del desarrollo inmobiliario denominado Forum. En asociación con esta empresa, se comenzó a desarrollar el Proyecto Metra en la Unidad de Gestión N.° 1[24]: un emprendimiento inmobiliario de gran escala destinado a productos “menos premium” que, a su vez, contaba con un sistema particular de financiamiento en pesos a partir de cuotas posposesión[25].
Este emprendimiento introducía modificaciones en la morfología inicial, por lo que, en el año 2013, bajo una nueva gestión en el gobierno municipal, se sancionó la modificación de la ordenanza[26]. En términos proyectuales, las condiciones que la Secretaría de Planeamiento inicialmente había exigido, en relación con el espacio público y la preservación del patrimonio, se respetaron. Sin embargo, la nueva ordenanza autorizaba una mayor ocupación sobre la costa. Es decir, tal como se puede ver en la figura 5, se eliminó la exigencia de los 34 metros medidos desde la línea superior de la barranca y solo se mantuvieron los 35 metros correspondientes al camino de sirga. Estas modificaciones favorecían la rentabilidad del proyecto, en tanto habilitaban la construcción en los terrenos costeros.
Figura 5. Esquema plan de detalle Unidad de Gestión N.° 1.
Centro de Renovación Urbana Scalabrini Ortiz. Puerto Norte

Fuente: elaboración propia con base en Ordenanza N.° 9047-13.
Sin embargo, el proyecto no llegó a ejecutarse. En el año 2018, cuando todavía no había empezado la construcción de la primera torre, TGLT compró la empresa Caputo y redefinió su intervención en Puerto Norte. En una primera instancia, redujo a la mitad el proyecto original. Esto se debió, según un comunicado de la empresa, “a la nueva coyuntura económica, que permitió la aparición de nuevas formas de financiamiento más atractivas”[27]. Y, en una segunda instancia, solo habiendo construido uno de los edificios, abandonó el proyecto de Metra.
En síntesis, los ámbitos construidos alrededor del Convenio Urbanístico fueron el telón de fondo de un complejo proceso de negociación entre Servicios Portuarios, ya consolidada como desarrolladora inmobiliaria, y la Secretaría de Planeamiento. El resultado proyectual de las negociaciones permite mostrar que la Secretaría, desde una fuerte voluntad reguladora, garantizó, al menos en parte, las condiciones de proyecto sobre las cuales se había sustentado el proceso. No obstante, estas exigencias comenzarían a declinarse a partir del año 2013, en un nuevo contexto político y ante nuevos intereses privados.
Excepción y valorización. 2013-2022
Durante este nuevo ciclo, en el que la mayor parte de los proyectos inmobiliarios en Puerto Norte estaban finalizados o en vías de ejecución, las estrategias de Servicios Portuarios volvieron a cambiar de rumbo. A partir de aquí, sus acciones se encontraron orientadas a obtener la aprobación de nuevos indicadores urbanísticos y excepciones a la norma. De esta manera, era posible iniciar un nuevo proceso de valorización de la tierra, para su posterior comercialización. Asimismo, este modo de operación sería posteriormente replicado por las nuevas empresas que intervendrían en dichos terrenos.
A su vez, estas estrategias se encontraron atravesadas por la modificación de las condiciones macroeconómicas, impulsadas por el gobierno nacional que asumió en el año 2015. En términos amplios, estas tuvieron origen en la modificación del régimen de acumulación que comenzó a estar impulsado por las finanzas (Montecchia & Valdecantos, 2020). A pesar de que en un primer momento el mercado inmobiliario tuvo un leve crecimiento, como producto de la implementación de los créditos UVA[28] (Avalos, 2022) y de las exenciones impositivas (Socoloff, 2021), a partir del año 2018 comenzó a disminuir la rentabilidad. Esto se produjo como consecuencia, entre otros, del redireccionamiento de los fondos hacia el mercado financiero de capitales, desregulado como parte de dichas políticas (Pierbattisti, 2018; Zeolla et al., 2021).
En este contexto, Servicios Portuarios, al tiempo que continuaba consolidándose como un holding centralmente orientado al almacenaje y exportación de granos, puso en marcha nuevas estrategias en ambas unidades de gestión.
En el caso de la Unidad de Gestión N.° 6 logró obtener, en el año 2017, un aumento significativo de la superficie máxima edificable (de 21.000 m² a 41.500 m²) y la eliminación del grado de protección total del silo designado como C2. De esta manera, garantizaba las condiciones para que Turicentro Viajes S.A. comprara una parte del terreno con destino a la ejecución de un hotel de la cadena Sheraton. Tal como lo indicó el concejal Monteverde[29], la operación de compraventa había quedado supeditada a la aprobación de los nuevos indicadores.
En la comparación gráfica entre la vista del proyecto original y la del proyecto modificado (figuras 6 y 7), puede observarse que el resultado de esta negociación modificó sustancialmente la configuración espacial resultante. Esto se produjo no solo a partir de la eliminación del silo (C2) que había sido considerado de “protección total”, sino también a partir del incremento de la capacidad constructiva para el nuevo edificio destinado al hotel (E3).
Figura 6. Definiciones morfológicas iniciales

Fuente: Ordenanza Complementaria N.° 8320-08.
Figura 7. Definiciones modificadas según los requerimientos de rentabilidad del hotel

Fuente: Ordenanza N.° 9756-17.
Finalmente, este desarrollo quedó suspendido, producto de los procesos judiciales que enfrentaba Carlos Gianni, dueño de Turicentro Viajes. A pesar de que años más tarde sería absuelto[30], el proyecto no fue realizado.
En relación con la Unidad de Gestión N.° 1, las negociaciones para conseguir las excepciones quedaron en manos del nuevo “Fideicomiso Unidad 1”, que en el año 2019 había adquirido tres de los lotes costeros[31]. El fideicomiso pertenece a Franco Gagliardo, Andres Gagliardo y Diego Feser. A su vez, Franco Gagliardo es el presidente de Obring, una empresa de amplia trayectoria en Rosario que creció y se consolidó de la mano de las licitaciones de obras de infraestructura realizadas por el municipio (Bielsa, comunicación personal 10-11-2019). Por su parte, Diego Feser pertenece al Estudio de abogados Casanova, Mattos, Salvatierra y Feser. Se trata de un estudio jurídico que, como parte de sus servicios, ofrece la negociación de ordenanzas tanto en el Poder Ejecutivo como en el Legislativo. En su página de internet informa que
Junto con el “boom” de la soja, vino el “boom” de Rosario, y el Estudio ha tenido el privilegio de participar en los principales desarrollos urbanísticos de la ciudad. En todos sin excepción hemos tenido una actuación, desde originadores del mismo hasta una participación meramente instrumental, pero siempre nuestra firma ha estado presente. Hemos participado, o bien confeccionando la estructura del proyecto, o reestructurando un emprendimiento en crisis, en determinados casos incorporando inversores originarios o secundarios, tramitando ordenanzas con el poder ejecutivo o con el consejo [se transcribe el error], en la compraventa de inmuebles estratégicos, en la redacción de la figura jurídica idónea, en fin, en todas las etapas propias de la dinámica que presenta este tipo de negocios en una sociedad en desarrollo[32].
El modo en el que se conforma el Fideicomiso permite dar cuenta de cómo se rearticulan las acciones económicas de las empresas y, de manera simultánea, el protagonismo que comienzan a adquirir los estudios jurídicos en el despliegue de esas estrategias.
Finalmente, el Fideicomiso Unidad 1 solicitó al municipio la modificación del marco normativo para construir una torre de 200 metros. Esta modificación implicaba no solo el incremento de 36.547 m² de la edificabilidad originalmente aprobada para ese predio, sino que también requería la eliminación del silo de valor patrimonial. La ordenanza[33] fue aprobada, aunque con fuertes resistencias en el Concejo Deliberante, el 15 de diciembre del año 2022. En la figura 8, es posible dar cuenta de la reconfiguración del proyecto inicial y la desaparición del silo.
Figura 8. Nueva configuración morfológica producto de la eliminación del silo y la pisada de la nueva torre

Fuente: elaboración propia con base en la Ordenanza N.° 10.491/23.
Asimismo, tal como se puede ver en la figura 9, y al igual que la modificación aprobada para la realización del hotel, el resultado de las negociaciones tuvo un importante correlato en la reconfiguración morfológica y proyectual del desarrollo. En este caso, además, la nueva altura permitida se contrapone con la escala de los silos, que el proyecto inicial buscaba mantener.
Figura 9. Corte general

Fuente: https://bit.ly/489ET4T.
Asimismo, la aprobación de estas modificaciones plantea el interrogante sobre el devenir del resto de los terrenos de la Unidad de Gestión N.° 1, que aún no se han materializado. Particularmente, en relación con el Lote 1 (lindero al de la torre), que no formó parte de la operación de compraventa y cuyas condiciones de ejecución quedaron establecidas según el proyecto del año 2013.
En síntesis, en esta nueva inflexión, la correlación de fuerzas alrededor de los ámbitos de negociación del Convenio Urbanístico les permitieron a las empresas desarrolladoras obtener las “excepciones” que habilitaron una intensiva valorización de la tierra. Asimismo, las configuraciones espaciales resultantes de esas negociaciones muestran que aquellos principios sobre los cuales se había cimentado el Proyecto Urbano quedaron desdibujados por detrás de la creciente rentabilidad exigida por los desarrolladores inmobiliarios.
Notas de cierre
En este capítulo nos propusimos analizar la acción empresarial en relación con el devenir del GPU y lo que estuvo en juego en cada momento del proceso. Particularmente, nos interesó indagar sobre las modalidades según las cuales la empresa Servicios Portuarios, junto con otras, fue transformando y modificando sus estrategias, en función del proceso de reconversión de Puerto Norte.
En un primer momento de gestación del GPU, Servicios Portuarios, desde su posicionamiento como una de las empresas vinculadas a la actividad portuaria más importantes de la región, desplegó estrategias de resistencia al proyecto. Estas, a su vez, le aseguraron un rol protagónico en el proceso que se iniciaba. En un segundo momento, de consolidación de Puerto Norte y en un contexto de alta rentabilidad del mercado inmobiliario, la empresa utilizó la propiedad sobre la tierra como oportunidad para iniciar un proceso de diversificación. En el tercer momento, ante el cambio en las condiciones de contexto, las estrategias se reorientaron con el objetivo de obtener los indicadores urbanísticos que le permitieran iniciar nuevos procesos de valorización, para su posterior comercialización. Es decir que sus acciones empresariales se encontraron definidas no solo por las condiciones macroeconómicas de contexto, sino también por los momentos del proceso de gestación, puesta en marcha y consolidación de la reconversión de Puerto Norte.
Asimismo, las acciones de Servicios Portuarios se orientaron a construir poder para incidir en los ámbitos de negociación construidos alrededor del Convenio Urbanístico, según sus intereses. Estos ámbitos fueron la arena de combate donde se dirimió lo que estuvo en juego en cada instancia del proceso. En un primer momento, fue el instrumento que la Secretaría de Planeamiento utilizó para poner en marcha el proyecto. El objetivo era garantizar las condiciones de rentabilidad al tiempo que exigía el cumplimiento de las condiciones proyectuales. En un segundo momento, en consonancia con lo que Peresini (2019) denominó la “mercantilización de las condiciones normativas”, se convirtieron en el ámbito donde las empresas operaron en función de las crecientes expectativas de rentabilidad. Por otro lado, los sistemas relacionales de poder resultantes de estos ámbitos tuvieron un correlato en la reconfiguración morfológica y espacial, inicialmente definida para Puerto Norte. Así, las condiciones proyectuales iniciales quedaron subsumidas a la retórica de los considerandos en las ordenanzas que habilitaron las mayores rentabilidades.
Conceptualmente, el estudio de la acción empresarial contribuye a explicar el devenir de los GPU y, de manera inversa, el proceso por el que atraviesan los GPU permite iluminar muchas de las estrategias que despliegan las empresas.
Metodológicamente, en primer lugar, permite ver que los actores se construyen y reconstruyen en el proceso de gestación, puesta en marcha y consolidación del GPU. En segundo lugar, el abordaje desde la escala intermedia permite ver “cómo” los actores empresariales diseñan sus acciones en función de los intereses que, a su vez, se modifican en la larga duración del proceso. En tercer lugar, permite dejar de estudiar a los actores en sus individualidades y entenderlos en interacción con otros actores.
Empíricamente, el abordaje desde la acción empresarial permitió mostrar los mecanismos concretos mediante los cuales Servicios Portuarios, una empresa cuyo origen y trayectoria fue en el rubro del almacenaje y exportación de granos, se construyó como inmobiliaria al calor de la temporalidad del proceso de reconversión en Puerto Norte.
Finalmente, el análisis propuesto permitió sumar miradas a los trabajos que dan cuenta de los procesos complejos y poco lineales que se encuentran por detrás de la transformación de la ciudad. Asimismo, puso en evidencia que estos procesos no se encuentran definidos por decisiones estatales o por la voluntad de los actores empresariales, sino por la multiplicidad de factores que intervienen en las alternativas de desarrollo de un fragmento de ciudad.
Si bien no se trata de la única dimensión relevante, entendemos que habilita una valiosa aproximación para explicar la centralidad que adquiere la acción empresarial en el estudio de los GPU.
Bibliografía
Arqueros Mejica, M. S. (2020). Políticas urbanas, conflicto y territorio: complejidades de la acción público-privada en la producción del espacio. Estudios del Hábitat, 18 (1), 078. https://doi.org/10.24215/24226483078.
Avalos, P. D. (2022). La producción de vivienda colectiva de perímetro cerrado. Agentes y estrategias. Córdoba, Argentina 2001-2020. Universidad Nacional de Córdoba.
Baer, L. (2008). Crecimiento económico, mercado inmobiliario y ausencia de política de suelo. Un análisis de la expansión del espacio residencial de la Ciudad de Buenos Aires en los 2000. Revista Proyección, 2 (5), 245. http://www.proyeccionrevista.com.ar/revistas/proyeccion-n-5/articulo-v-5.
Barenboim, C. & Tomino, G. (2016). Estrategias de comercialización y marketing urbano: el producto Puerto Norte Rosario, Argentina. Collectivus, Revista de Ciencias Sociales, 3 (1), 66-90. https://doi.org/10.15648/coll.1.2016.4.
Beltrán, G. J. (2012). Las prácticas del poder. Discusiones en torno al problema de la acción política empresaria. Apuntes: Revista de Ciencias Sociales, 39 (70), 69-102. https://doi.org/10.21678/apuntes.70.646.
Brizuela, F. (2022). La gobernanza urbana empresarial. Notas sobre la cuestión urbana en la ciudad de Rosario (Argentina). En M. C. Cravino (ed.), Derecho a la ciudad en América Latina. Tomo 2. Políticas públicas, reforma urbana y mercado del suelo. Ediciones UNGS. Universidad Nacional de General Sarmiento. https://doi.org/10.2307/j.ctvt6rm0z.
Capdevielle, J. (2016). El mercado inmobiliario y la producción privada de viviendas: una aproximación a las estrategias empresariales en la ciudad de Córdoba (Argentina). Cuadernos de Geografía: Revista Colombiana de Geografía, 25 (2), 177. https://doi.org/10.15446/rcdg.v25n2.49758.
Carmona, M. (2005). Globalización y cambios conceptuales en el desarrollo urbano. Viejas contradicciones y nuevos paradigmas. En M. Carmona & A. Arrese (eds.), Globalización y grandes proyectos urbanos: La respuesta de 25 ciudades. Infinito.
Cisterna, C. (2023). Las estrategias del capital promotor inmobiliario en la ciudad de Córdoba, Argentina (2004-2019). La CEDUC, el Grupo EDISUR y el Gran Proyecto Urbano Manantiales desde las geografías urbanas críticas. Universidad de la Plata.
Cisterna, C. & Capdevielle, J. (2015). Estrategias de promoción inmobiliaria en la producción de la ciudad. El caso del “desarrollista” GAMA en la ciudad de Córdoba, Argentina. Papeles de Geografía, 61 (61), 137. https://doi.org/10.6018/geografia/2015/234621.
Clichevsky, N. (2002). Tierra vacante en Buenos Aires: Entre los loteos “populares” y las “áreas exclusivas”. En Tierra vacante en ciudades latinoamericanas. Lincoln Institute of Land Policy Cambridge, Massachusetts.
Clichevsky, N. (2003). Cambios en el espacio metropolitano. En A. Catenazzi, N. Da Representaçao, & J. Lombardo (eds.), La cuestión urbana en los 90 en la Región Metropolitana de Buenos Aires (pp. 1-23). Universidad Nacional de General Sarmiento.
Corral, M. M. (2009). Grandes proyectos urbanos. Actores públicos y privados en el emprendimiento Puerto Madero (1989-2009). V Jornadas de Jóvenes Investigadores IIGG, 0-20.
Cuenya, B. (2012). Grandes proyectos urbanos. Miradas críticas sobre la experiencia argentina y brasileña. C. de las Ciudades (ed.).
Cuenya, B. & Corral, M. M. (2011). Empresarialismo, economía del suelo y grandes proyectos urbanos: el modelo de Puerto Madero en Buenos Aires. EURE (Santiago), 37 (1083), 25-45. https://tinyurl.com/yc4xpuyz.
Cuenya, B.; Gonzáles, E.; Mosto, G. & Pupareli, S. (2009). Movilización de plusvalías urbanas en un Gran Proyecto urbano. La experiencia de Puerto Norte en la Ciudad de Rosario, Argentina. Lincoln Institute of Land Policy.
Cuenya, B. & Pupareli, S. (2006). Grandes proyectos como herramientas de creación y captación de plusvalías urbanas. Proyecto Puerto Norte Rosario, Argentina. Medio Ambiente y Urbanización. http://www.ingentaconnect.com/content/iieal/meda/2006/00000065/00000001/art00006
Cuenya, B.; Pupareli, S.; Brunstein, F.; Cascella, H.; Mosto, G.; Di Loreto, M.; Garat, P. & Smolka, M. (2004). Análisis y proposición de métodos de recuperación de plusvalías urbanas generadas por la acción pública municipal. Informe Final de Consultoría (p. 447). Municipalidad de Rosario. Servicio Público de la Vivienda. Programa Rosario Habitat y Centro de Estudios Urbanos y Regionales.
Del Río, J. P.; Langard, F. & Arturi, D. (2014). La impronta del mercado inmobiliario en el período neodesarrollista. Realidad Económica, 283.
Dossi, M. (2012). Debates sobre la acción empresarial organizada: aportes para la elaboración de la acción cooperativa empresaria. Papeles de Trabajo, 9, 58-83.
Dossi, M. & Lissin, L. (2011). La acción empresarial organizada: Propuesta de abordaje para el estudio del empresariado. Revista Mexicana de Sociologia, 73 (3), 415-443.
Duarte, M. (2002). El impacto social de la reforma del Estado. Universidad Nacional de San Martín.
Etulain, J. C. (2008). ¿Gestión promocional o privatización de la gestión urbanística? Proyecto Urbano Puerto Madero, Buenos Aires, Argenina. Bitácora Urbano Territorial, 12 (1), 171-184.
Etulain, J. C. (2009). Gestión urbanística y proyecto urbano. Modelos y estrategias de intervención. Nobuko.
Feld, N. (2021). Actores y procesos en los convenios urbanísticos para Puerto Norte en Rosario. Notas sobre lo público y lo privado. Cuaderno Urbano, 31, 9-34.
Gaggero, A. (2012). Estado, mercado y dinámicas organizacionales. Un abordaje de las estrategias empresarias a través de la sociología económica. Papeles de Trabajo: La Revista Electrónica del IDAES, 6(9), 37-57. https://tinyurl.com/mrrtpeuh.
Gonzalez-Redondo, C. (2022). Alcances y límites de la gobernanza urbana: incentivos públicos y estrategias empresariales en los distritos de la Ciudad de Buenos Aires. Eure, 48 (145), 1-21. https://doi.org/10.7764/eure.48.145.11.
Granovetter, M. (1985). Economic Action and social structure: the problem of embeddedness. American Juornal of Sociology, 91 (3), 481-510.
Kozak, D. & Feld, N. (2017). La llegada al río a través de un macro proyecto urbano: estudios sobre el espacio público costero en Puerto Norte en la ciudad de Rosario, Argentina. En C. Fidel & G. Romero (eds.), Producción de vivienda y desarrollo urbano sustentable (pp. 265-289). Pensamiento Crítico. https://doi.org/10.1007/BF00585542.
Lungo, M. (2005). Globalización, grandes proyectos y privatización de la gestión urbana. Urbano, 8, 49-58. https://tinyurl.com/yc379hhr.
Magallanes, R. M. (2023). Patrimonialización y Grandes Proyectos Urbanos. El proceso de refuncionalización de la Bodega Arizu en Godoy Cruz, Argentina. Quid 16. Dossier, 1-21.
Menazzi, L. (2015). Entramado público-privado en la construcción de la ciudad. Obra pública y regulaciones en la Ciudad de Buenos Aires. Red de Investigación Urbana A.C.; Ciudades, 106, 45-52.
Montecchia, A. A. & Valdecantos, S. (2020). Financiarización del régimen de acumulación en Argentina. Un análisis del período 2016-2018. Ciclos en la Historia, la Economía y la Sociedad, 27 (55), 211-237.
Morales-Schechinger, C. (2005). Políticas de suelo urbano, accesibilidad de los pobres y recuperación de plusvalías. En M. Carmona & A. Arrese (eds.), Globalización y Grandes Proyectos Urbanos: La respuesta de 25 ciudades. Infinito.
Mosto, G. (2013). El plusvalor de la vista abierta sobre el río en el suelo urbano. La costa de Rosario, Puerto Norte. Universidad Torcuato Di Tella.
Novick, A. & Feld, N. (2021). Territorios: Proyecto. SI+ Palabras Clave. Conceptos, Términos, Metadatos.
Pegoraro, V. (2020). Nicolás Dazeo, “el zar de la industria de la construcción”. Desempeño de una empresa familiar en Mar del Plata (1942-1996). Anuario CEEED, 13, 71-110.
Peresini, N. (2019). La institucionalización de Convenios Urbanísticos en la ciudad de Córdoba, Argentina. Un análisis de las adaptaciones normativas e institucionales en favor del proceso de neoliberalización en la gestión urbana local (1983-2019). Universidad Nacional de General Sarmiento.
Peresini, N. (2020). Los mecanismos de vinculación público-privada en la gestión urbana local. Un recorrido a través de un caso de estudio. Revista Ciudades, Estados y Política, 7 (2), 59-75. https://doi.org/10.15446/cep.v7n2.86610.
Pierbattisti, D. (2018). La confrontación entre dos modelos societarios y económicos en Argentina, 2003-2017. Ensayos de Economía, 28 (1), 430-439. https://doi.org/10.15446/ede.
Quiroga Ríos, J. (2022). Los promotores inmobiliarios y la captación de rentas en los procesos urbanos de Mendoza, Argentina. Quid 16: Revista del Área de Estudios Urbanos, 17 (junio-noviembre), 197-213.
Raspall, T. (2014). El rol de los actores en la configuración de la oferta de vivienda nueva en la Ciudad de Buenos Aires durante los primeros años de la posconvertibilidad. El caso del Barrio de Caballito, 2003-2008. Univarsidad Nacional de San Martín.
Raspall, T. (2018). Actores y estrategias empresarias en el mercado inmobiliario. Un análisis de la oferta de vivienda nueva en la Ciudad de Buenos Aires durante los primeros años de la posconvertibilidad. Cuaderno Urbano, 23 (23), 7. https://doi.org/10.30972/crn.23232687.
Rodríguez, A. & Abramo, P. (2005). Grandes proyectos urbanos y su impacto en el mercado de suelo urbano. Documento de Trabajo Lincoln Institute of Land Policy. 1-32. https://tinyurl.com/5n8crjnj.
Scarpacci, M. (2014). El GPU de Puerto Norte en el planeamiento estratégico socialista: Rosario, Argentina, 2003-2013. Facultad Latinioamericana de Ciencias Sociales.
Smolka, M. & Lungo, M. (2005). Tierra y grandes proyectos urbanos: una relación crítica. ECA: Estudios Centroamericanos, 678, 379-384.
Socoloff, I. (2013). Polos, distritos y enclaves en Buenos Aires. De la pedagogía del inversor a la “inflación” de los precios del suelo. En J. Martin (ed.), La ciudad empresa (pp. 67-88). Centro Cultural de la Cooperación.
Socoloff, I. (2015). Financiamiento global y centros comerciales en Buenos Aires: Un estudio del caso de IRSA. Invi, 84 (30) (August 2015), 151-177.
Socoloff, I. (2018). Grandes desarrolladores inmobiliarios: hacia una tipología de sus estrategias de inversión y financiamiento entre 2002 y 2015. Jornadas “Empresas, Empresarios y Burocracias Estatales en la Producción del Espacio Urbano a Través de la Historia”, 25 y 26 de junio de 2018, 1-22.
Socoloff, I. (2019). Financiarización variada de la producción inmobiliaria en Argentina: el caso del boom inmobiliario en Buenos Aires y la postcrisis en perspectiva (2002-2015). Scripta Nova, XXII (616).
Socoloff, I. (2021). Fondos inmobiliarios cotizados y financiarización de la vivienda en Argentina. Revista INVI, 36 (103), 85-111. https://doi.org/10.4067/s0718-83582021000300085.
Vainer, C. (2012). Grandes Proyectos Urbanos. Qué son y cómo evaluarlos. En B. Cuenya, P. Novais, & C. Vainer (eds.), Grandes Proyectos Urbanos. Miradas críticas sobre la experiencia argentina y brasileña.
Valenti Randi, M. (2021). Los puertos y su hinterland: La logística portuaria exportadora de los sectores oleaginosos y cerealeros en los puertos de la provincia de Buenos Aires y sus hinterland al margen de la Vía Navegable Troncal entre 2016-2019. Universidad de Buenos Aires.
Vértiz, F. & Del Río, J. P. (2020). Poder y regulación urbana en la ciudad de La Plata. Estudios del Hábitat, 18 (1), 080. https://doi.org/10.24215/24226483080.
Zeolla, H. N.; Gómez Lira, M. & Socoloff, I. (2021). Financiarización fallida: El crédito hipotecario en Argentina, 2016-19. Ola Financiera, 14 (39), 152. https://doi.org/10.22201/fe.18701442e.2021.39.80083.
Fuentes primarias
CMCR (2017). Concejo Municipal de la Ciudad de Rosario. Versión taquigráfica 29 de junio de 2017 16.ª Reunión – 15.ª Sesión Ordinaria – 1.° Período.
Fallos de la Corte Suprema de la Nación (2007). Tomo 330. Volumen 3. Buenos Aires, 3 de julio de 2007. S. 1350. XLI. Servicios Portuarios c/ Estado Nacional s/ amparo.
MCR (1997). Municipalidad de la Ciudad de Rosario. Ordenanza N.° 6492/97.
MCR (2004). Proyecto de Ordenanza retirado, Bases del Concurso Nacional de Anteproyectos e Ideas para la Elaboración del Plan Particularizado para la Segunda Fase del Centro de Renovación Urbana Scalabrini Ortiz.
MCR (1998). Plan Estratégico Rosario.
MCR (2005). Municipalidad de la Ciudad de Rosario. Ordenanza Básica N.° 7892/05.
MCR (2008). Municipalidad de la Ciudad de Rosario. Ordenanza Complementaria N.° 8320/08.
MCR (2008). Municipalidad de la Ciudad de Rosario. Ordenanza Complementaria N.° 8297/08.
MCR (2013). Municipalidad de la Ciudad de Rosario. Ordenanza N.° 9047/13.
MCR (2017). Municipalidad de la Ciudad de Rosario. Ordenanza N.° 9756/17.
MCR (2023). Municipalidad de la Ciudad de Rosario. Ordenanza N.° 10.491/23, “Plan de Detalle de la Manzana 425.
- Instituto del Conurbano-Universidad Nacional de General Sarmiento.↵
- https://serviciosportuarios.com.ar/. ↵
- San Nicolás, San Pedro, Villa Constitución y Rosario (Unidades Portuarias III en Puerto Norte, Terminales VI y VII en el sur).↵
- Esto le permitió, a su vez, incorporar nuevos desarrollos inmobiliarios sobre la ribera del Paraná: Terraza de la Rivera y Zárate Chico. ↵
- Para posibilitar este abordaje se adoptó una metodología de carácter cualitativo a partir de un estudio de caso y se recurrió al análisis documental centrado en normativas, documentos públicos, transcripciones taquigráficas del Consejo Deliberante de la Ciudad de Rosario, Fallos Judiciales, informes financieros de las empresas desarrolladoras, archivos periodísticos y fuentes secundarias. Asimismo, se trabajó con entrevistas en profundidad semiestructuradas a informantes claves.↵
- La Junta Nacional de Granos había sido creada en el año 1963 en reemplazo de la Junta Reguladora de Granos que desde 1946 formaba parte del IAPI. En términos amplios se trataba de un “agente comercializador de la producción primaria argentina durante la segunda mitad del siglo XX”. Dentro de sus funciones se encontraba la “regulación y control de las operaciones de producción, acopio, transporte y comercialización interna y externa de cereales” (Duarte, 2002: 5). Era el ente que administraba los elevadores en los principales puertos de Argentina, y el de Rosario se encontraba entre los más importantes. ↵
- Decreto 969/92.↵
- Resolución N.º 1415/93 del Ministerio de Economía. ↵
- Según se consigna en el Plan Estratégico Rosario 1998, “… a partir de agosto de 1996 caducaron las licencias de usos que permitían operar a las empresas en el lugar. No obstante, algunas continúan haciéndolo protegidas por la presentación de recursos de amparo tendientes a demorar el cambio de situación” (PER, 1998: 216).↵
- En términos amplios este proceso tuvo origen en la Ley de Financiamiento de la Vivienda y la Construcción del año 1994 que, con la expresa voluntad de incentivar la inversión privada, introdujo reformas en la configuración del mercado de capitales (Clichevsky, 2002; 2003). A su vez este proceso se encontró profundizado por la reducción de las tasas de interés (producto de la implementación del Plan de Convertibilidad), la política de créditos en dólares para la compra de propiedades y el ingreso de capitales internacionales (Clichevsky, 2003).↵
- Ordenanza N.° 6271/96.↵
- El motivo del litigio era si la potestad del Estado municipal para definir usos de suelo prevalecía sobre la potestad del Estado nacional de definir la localización de puertos. Este proceso llegaría a la Corte Suprema de la Justicia de la Nación, que, finalmente, reivindicaría la potestad del municipio de establecer los usos.↵
- El objeto de la disputa residió en que la decisión del municipio se oponía a las obligaciones de continuidad con la actividad portuaria que la empresa había asumido en el marco de la adjudicación de la Unidad Portuaria III. Esta condición sería posteriormente revertida por la Resolución N.º 737/01 del Ministerio de Economía, mediante la que se estableció relevar a Servicios Portuarios S.A. de la obligación asumida junto con la adjudicación. Este litigio finalizaría a favor del municipio en el año 2007.↵
- Ordenanza Básica N.º 7892/05.↵
- Para poner en marcha esta estrategia sectorizó el área en siete polígonos denominados unidades de gestión “en función de la propiedad de la tierra o de las diferentes modalidades de organización entre propietarios” (MCR, 2005). Simultáneamente, en el marco técnico administrativo, según las normas urbanísticas particulares, Puerto Norte se inscribió como Plan Especial (Ordenanza Básica) e incorporó la división en Planes de Detalle (Ordenanzas Complementarias). Es decir que la Secretaría de Planeamiento adoptó el siguiente esquema, según la Ordenanza de Urbanización, para la gestión de Puerto Norte: la Ordenanza Básica establecía los lineamientos generales del Plan Especial; las Ordenanzas Complementarias, las condiciones de urbanización referidas a la morfología y los indicadores edilicios de cada unidad de gestión. Estos quedaban formalizados en un Plan de Detalle a través de un Acta Acuerdo. Ambos constituían el Convenio Urbanístico.↵
- Ordenanza N.° 6492/97.↵
- Estas premisas, que habían formado parte de los debates históricos sobre la reconversión de la costa, estructuraron las bases del “Concurso Nacional de Anteproyectos e Ideas para la elaboración del Plan Particularizado para la 2.a Fase del Centro de Renovación Urbana Scalabrini Ortiz”, realizado en el año 2004.↵
- S. 1350. XLI. Servicios Portuarios c/ Estado Nacional s/ amparo.↵
- Acta Acuerdo. Municipalidad de Rosario y Servicios Portuarios, 14 de mayo de 2008.↵
- Ordenanza Complementaria N.º 8320/08.↵
- Se trata de un predio de 80.000 m² cuyo desarrollo se había determinado en etapas, según 5 áreas de intervención denominadas “unidad de ejecución de proyecto”. Estas unidades tenían el objetivo de “permitir su organización ejecutiva a través de diferentes consorcios, fideicomisos, sociedades comerciales, uniones transitorias de empresas u otras modalidades de organización empresarial que puedan proponerse” (Ordenanza N.° 8320/08).↵
- La figura de servidumbre administrativa de uso público se utilizó de manera complementaria a las condiciones establecidas por la Ordenanza de Urbanización y permitió garantizar el uso de espacio público en terrenos de dominio privado.↵
- https://www.fernandezprieto.com.ar/.↵
- La asociación con esta empresa, además, permite poner en evidencia dos estrategias de valorización sobre el suelo desplegadas por Servicios Portuarios. La primera, de especulación pasiva durante los 8 años transcurridos desde la adquisición del terreno en el año 2005 y la operación de permuta instrumentada con TGLT en el año 2013. La segunda, de especulación inmobiliaria a través de la obtención de la nueva normativa urbanística previo a la comercialización. La ordenanza que modifica la normativa se aprobó el 2 de mayo de 2013 y la operación con TGLT se concretó el 10 de diciembre de 2013.↵
- Reseña informativa, estados financieros consolidados condensados y separados condensados, informe de los auditores independientes y de la comisión fiscalizadora TGLT S.A. al 30 de septiembre de 2019.↵
- Ordenanza N.° 9047/13.↵
- Cita extraída del artículo “TGLT anunció que hará dos edificios en Puerto Norte” (18 de junio de 2006). La Capital. https://bit.ly/3RCzpdi. ↵
- Se trató de un tipo de crédito hipotecario de capital indexado por unidades de valor adquisitivo (UVA) que se implementó en Argentina a partir del año 2016 (Zeolla et al., 2021).↵
- Concejo Municipal de la Ciudad de Rosario, versión taquigráfica 29 de junio de 2017 16.ª Reunión – 15.ª Sesión Ordinaria – 1.° Período.↵
- Centro de Información Judicial, miércoles 12 de junio de 2019. https://bit.ly/47XBypJ.↵
- Para efectuar este proceso de venta, Servicios Portuarios S.A. y TGLT S.A. habían procedido al distracto parcial de la operación de permuta vinculada con la escritura de permuta, manteniendo TGLT la titularidad dominial. Y, en el mismo acto, TGLT había vendido los lotes 3, 4 y 5 de la manzana 425 (costera) a Unidad 1 Puerto Norte de Responsabilidad Limitada, Fiduciaria del Fideicomiso denominado “Fideicomiso Unidad 1”, y el lote 2 a Sancor Seguros Cooperativa de Seguros Ltda. El lote 1 no formó parte de la operación.↵
- https://cmsabogados.com.ar/projects/desarrollo-urbanistico-real-estate/. ↵
- Ordenanza N.° 10.491/23, “Plan de Detalle de la Manzana 425”.↵






